FEATURED PROJECTS
FILM
TV
SHOP
ABOUT
Menu
> FILM & TV DESIGN <
FEATURED PROJECTS
FILM
TV
SHOP
ABOUT
“THE BOYS”
housing project
AMAZON PRIME ORIGINAL
SET STILLS
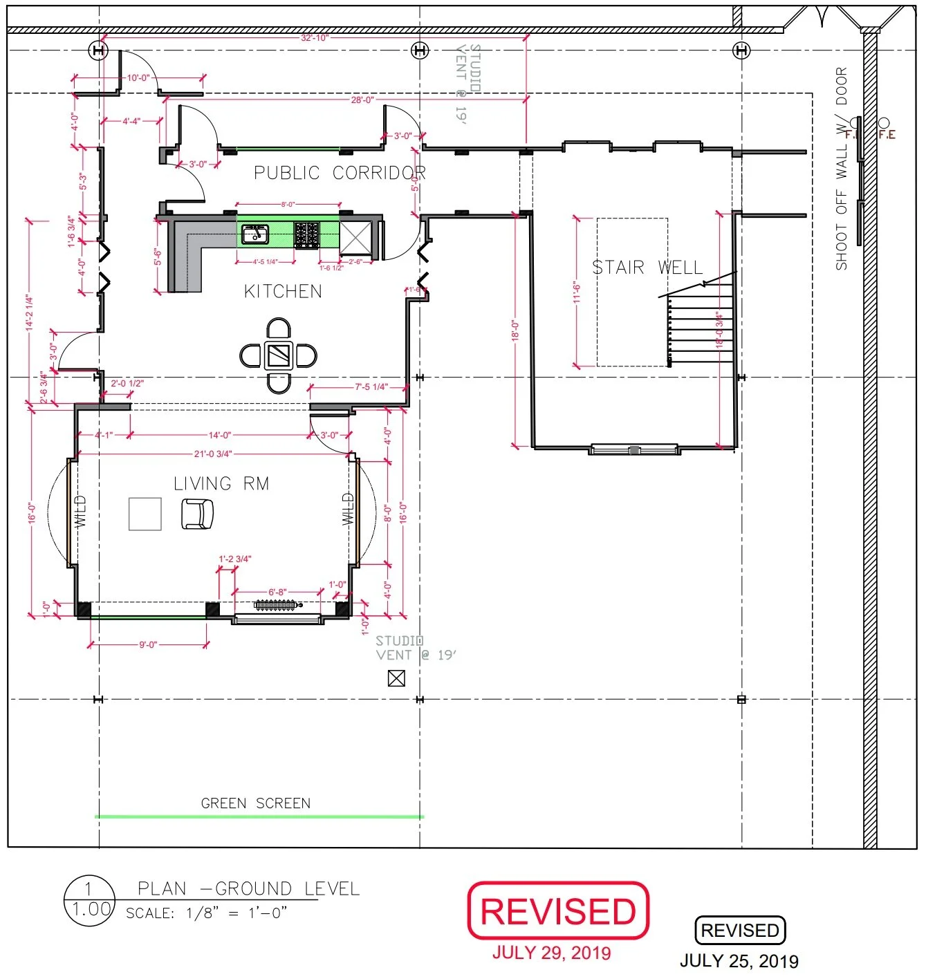
CONSTRUCTION DOCUMENTS
CONSTRUCTION DOCUMENTS